廚房使用面積不小于4平方米 衛生間不小于3平方米
公租房將出“樣板”設計圖集

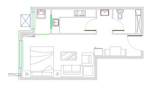
京原路7號公租房40平方米戶型圖。
最大不超過60平方米的小戶型公租房將有更實用的設計。記者昨日獲悉,為了保證公租房設計質量,相關部門正在著手制定公租房的設計、裝修標準,并將提供多套“樣板”設計圖給予參考。
去年年底,《北京市保障性住房規劃建設設計指導性圖集》出爐,以提高小戶型的設計水平。而現在,同一班底的人馬正在加緊完善公租房的戶型設計。
“標準和設計圖出爐后,將有望加快公租房的建設速度。”市建筑設計研究院總建筑師劉曉鐘說。
公租房戶型能“變型”
在設計師的規劃中,公租房不僅要在套型內滿足住戶的基本需求,還盡量要成為“變形金剛”,能與臨近的套型打通,組成一套面積更大的住宅。
按照《北京市公共租賃住房建設技術導則》,30平方米左右的單居套型應該具備簡單電加熱和排煙廚具的條件,40平方米至60平方米的小套型、中套型和大套型的廚房使用面積都要不小于4平方米。
同時,所有公租房的衛生間要不小于3平方米,陽臺建筑面積不大于4平方米。
“隨著經濟的發展,住宅的設計標準就會有變化。我們要在設計階段就考慮到在未來70年中情況一旦改變,這些小戶型是否還會好用。”市規劃委相關負責人說。
他表示,公租房設計中將考慮為兩套房打通成為一套房留空間。
只要兩套房中間沒有承重墻,打掉隔斷不就可以了嗎?設計師說,并非如此。
“我們要能保證打通的戶型同樣是合理的,不能說兩個戶型打通以后出現功能、面積上的浪費。”設計師說,如果兩套30平方米的單居戶型合并后出現兩個3平方米的衛生間,就會造成浪費。在設計時要考慮或者將兩個戶型的衛生間放在一起,或者考慮將其中一間改造成儲藏室。
室內加壁櫥“占天不占地”
屋內提供簡單裝修,讓人可以拎包入住。相關部門正在制定公租房的裝修標準,同時考慮設計出多種裝修方案供企業和入住人群選擇。
“如果是單身年輕人還好,但如果是已經在北京打拼了幾年,有家室的人搬進公租房時,可能會攜帶不少的家具。”清華大學教授周燕珉說,小戶型會面臨著租戶自帶家具和儲物空間的沖突。
“有些人的老家具拿進來擺不下,但下一戶可能又沒家具。公租房的住戶在流轉,可需求都不一樣。”一名開發企業負責人對記者說,不同人群有不同的需求,他們計劃在公租房中試水“菜單式”裝修,但可能會面臨浪費。
周燕珉說,在裝修標準中,將會推薦“占天不占地”的壁櫥形式。普通高度的大衣柜或冰箱可以塞到壁櫥之下。
沒經驗甭想設計公租房
40平方米建筑面積的小屋里,不僅有餐廳、廚房、衛生間、臥室和陽臺,甚至還能設計出一個客廳,擺下沙發。
這是正在建設的京原路7號公租房中40平方米的小戶型。為了保證設計水平,主管部門甚至對公租房的設計師進行了資質門檻限制。
“從今年年初開始,只有擁有保障房設計經歷、所在企業擁有良好業績記錄的設計師,才能參與包括公租房在內的保障房設計招投標工作。”市規劃委相關負責人說。
按照市規劃委要求,公租房的設計要更加合理有效地利用空間,設計師要先做好每個戶型,再對小區進行整體布局,再做好景觀設計和綠色節能設計。
據了解,今年,本市計劃建設、收購各類住房中用于公開搖號配租配售的有10萬套,其中公租房和廉租房將達6萬套,占60%。